KAMPFSPORTSCHULE
BERLIN
Entwurf LP 3 I 02/ 2025
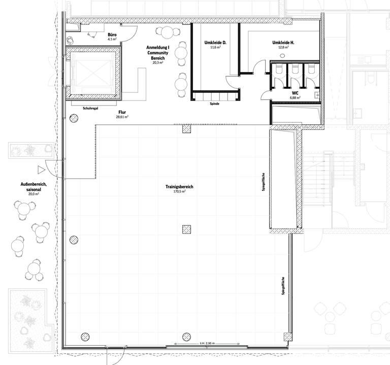
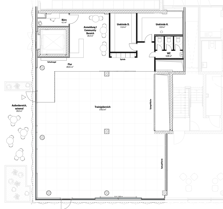
An prominenter Lage an der U-Bahn Station Möckernbrücke in Berlin soll ein Kampfsportstudio eröffnet werden.
Es wurde zwischen den Nutzräumen und der Trainingsfläche eine klare, einfach zu lesende Gliederung geschaffen. Durch modernes, zeitloses Design erhält das Muay Thai Studio einen einladenden, freundlichen Eindruck auf zukünftige Kunden.
Im Innen- sowie im Außenbereich wird ein Gemeinschaftsbereich geschaffen, um den Mitgliedern einen Raum zu geben, eine Gemeinschaft innerhalb der Kampfsportschule aufzubauen und Freundschaften zu knüpfen.




Grundriss
Perspektive


