DOPPELHAUS
NORDEN
Entwurf LP 3 I 10/ 2024
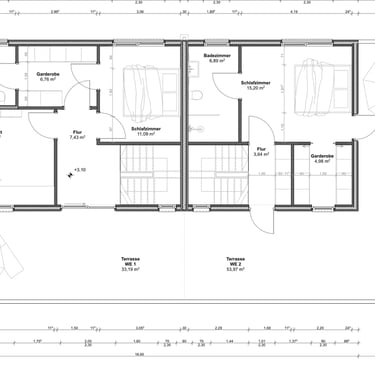
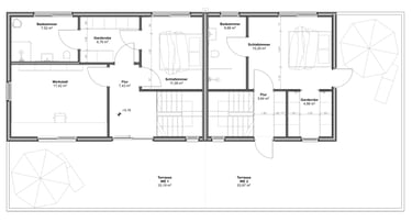
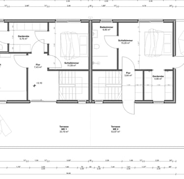
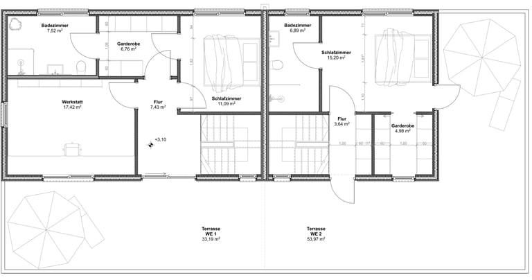
Im hinteren Teil eines Grundstücks in der Stadt Norden ist der Neubau eines Doppelhauses geplant.
Es werden zwei Wohneinheiten über 2 Etagen geschaffen, mit einer gemeinsamen Terrasse welche nach Süd-West ausgerichtete ist.
Das Doppelhaus wird in Holzständerbauweise als Fertighaus gefertigt. Im Innenraum werden großzügige, moderne Räume geschaffen welche sich durch große Fensterfronten in den Garten öffnen.








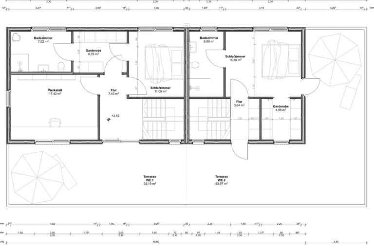
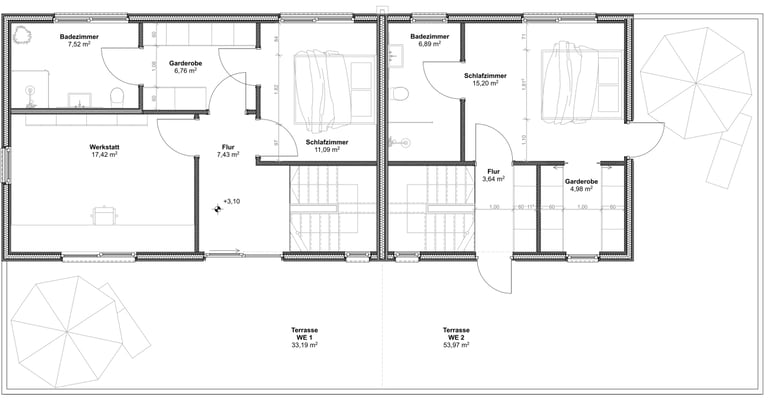
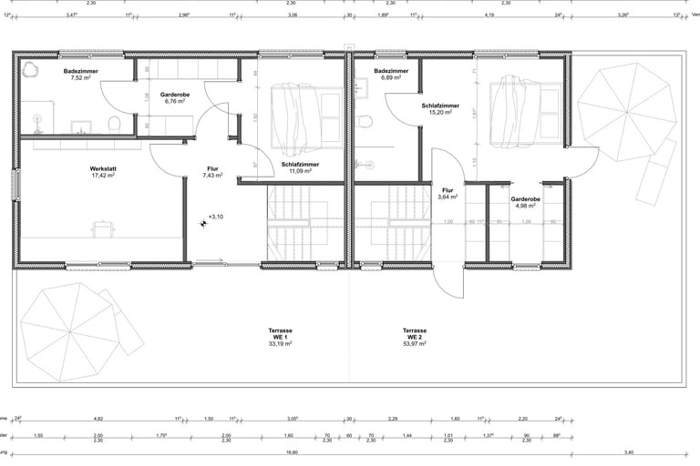
Grundriss OG
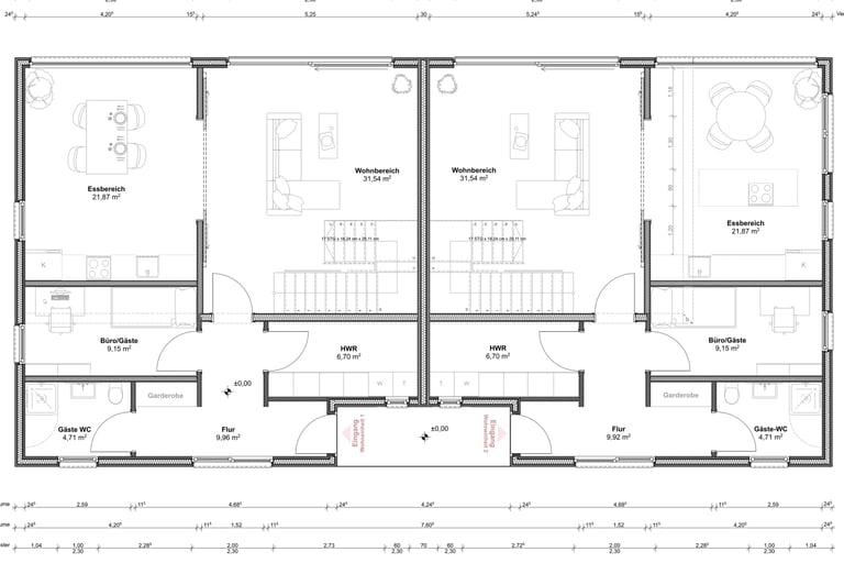
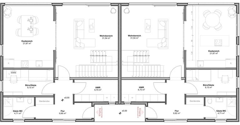
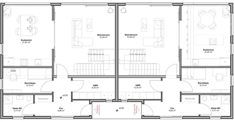
Grundriss EG
Ansicht Süd-Ost
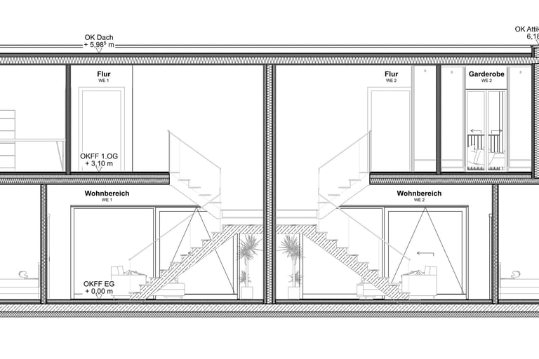
Schnitt B-B






Grundriss EG
Grundriss EG







